High Park Polanco in Mexico City is a modern residential development in the upscale Polanco area. It features open spaces, natural light, and greenery, blending urban living with nature. The mixed-use design includes retail and leisure amenities, promoting community interaction. Eco-friendly materials and energy-efficient systems reduce environmental impact. Its location offers easy access to business districts, cultural centers, and transport, ideal for professionals and families.
SCOPE OF SERVICES
PROGRAM
DESIGN THINKING
Site Plan
Typical Basement
Basement B1
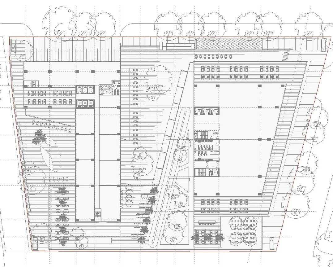
Ground Floor
Level 3
Level 4-6
Level 7-14
Level 15
Section
Elevation
