We view retail and entertainment architecture not merely as the design of spaces to house transactions, but as the creation of experiential ecosystems. These are the modern-day agoras, theme parks, and town squares where culture, commerce, and community converge.
At JON, we are specialists in retail and entertainment environments that don’t just attract crowds, but sustain them. In an era where experience is the only true differentiator, we create destinations built for 365-day utility: vibrant, adaptable, and indispensable places that thrive in all seasons, for all reasons.
GALERIAS INSURGENTES, 22,210 m², Insurgentes, Mexico City
A competition-winning revitalization of Mexico’s first and most iconic shopping mall. This entertainment-led extension introduces four new levels of retail, cinema, and dining, crowned by an open rooftop courtyard. Soaring full-height glass façades flood the interiors with natural light, while integrated water walls and dancing fountains create a dynamic, year-round destination. The design honors the mall’s historic legacy while injecting contemporary energy and a 365-day utility approach, ensuring its place as a vibrant, modern landmark.
GALERIAS REWORK, 9,306 m², Insurgentes Mexico City
“JON has been a game changer for us. I would recommend you take a closer look at this great design group.
”
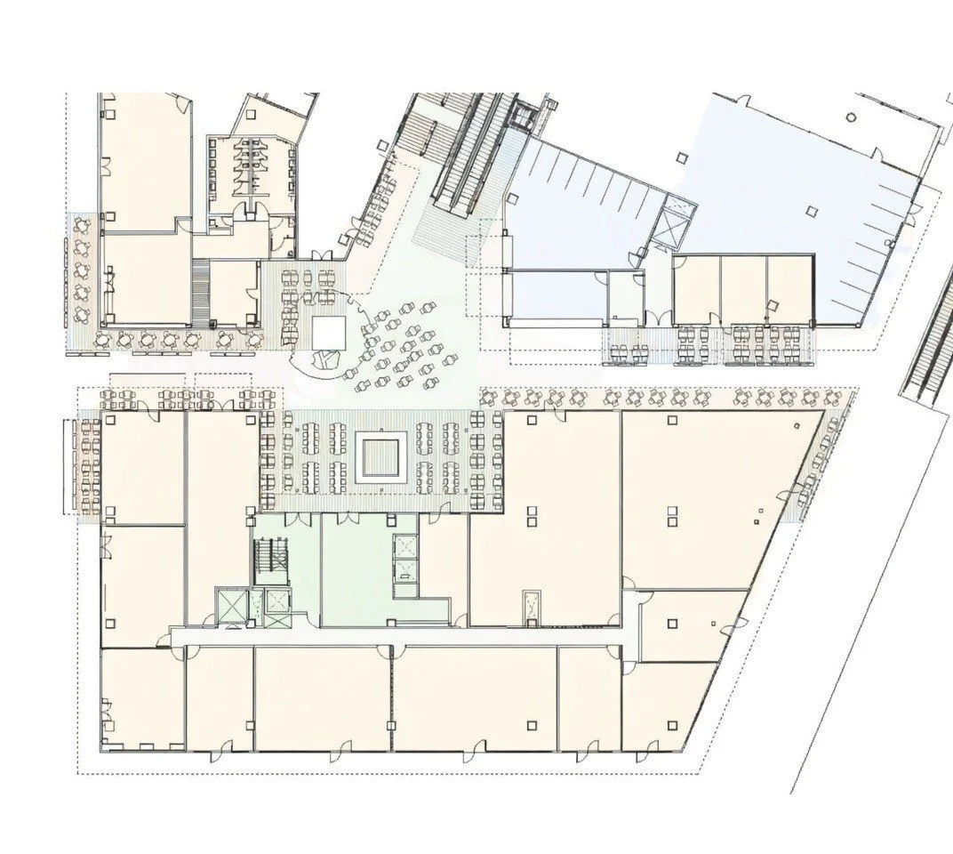
THE LANDMARK 85,000 m², Retail Entertainment Complex, Puebla, Mexico.Three forms for three functions on a triangular site gave rise to a central circular retail mall flanked by office and hotel facilities connected via a central circulation axis. The spatial relationships created the seed for an exciting retail experience. The 360 degree retail shopping mall pulled into the centre of the site to create an iconic standalone "landmark" development.
LANEWAYS Open food court, Monterrey, Mexico
Immersive, social street-food destination reflecting Monterrey’s urban energy. Laneway layout with exposed brick, reclaimed wood and global stalls (Caribbean, Spanish, Japanese, Vietnamese). Festive lighting, interactive cook stations, communal seating and cultural murals emphasize authenticity, freshness and social interaction. Industrial bones with local touches and digital integrations encourage exploration, sharing and repeat visits.
GALERIAS TABASCO, 76,774 m²,Tabasco, Mexico
Planning Diagram
A transformative expansion that redefines the modern retail experience. Connecting to the existing mall via a glass sky bridge, this two-level destination is organized around a breathtaking central atrium flooded with natural light. The design brings the outside in through extensive use of warm, sustainable wood paneling on ceilings and soffits, creating a biophilic environment. It culminates in a publicly accessible green roof park, seamlessly linking the complex to the adjacent city park.
NEXUS 9, Prototype Future Retail Entertainment Mall.
Welcome to Nexus 9: an immersive entertainment hub where discovery is intuitive. Your biometric ID links to a preference cloud that adjusts lighting, scent, and sound as you move—from a vintage vinyl alcove to a holographic theatre preview. AI concierges, shown as subtle light forms, deliver hyper-personalized content—unused storyboards, simulated concert acoustics, and more. Physical and digital merge: touch a prop and your digital library updates with its history and soundtrack. Nexus 9 is a starting point for deeper narrative engagement—premieres, creator workshops, and immersive lore that turn each visit into a personalized chapter of your fandom.
COVE BAY, 176,600 m², La Paz, Mexico
Our challenge was to successfully connect the principal site, which was separated by a busy highway, to the adjacent luxury marina. By siting a new boutique hotel on a compact, prime marina plot and linking it back to the main development with a carefully designed passenger bridge, a spectacular, integrated mixed‑use destination was created. The scheme also ensured ocean views from every unit above one of the largest shopping malls in the region.
